• 3.2: Steuerung in Betrieb nehmen

    •   Ich kann...

      In diesem Lernschritt lerne ich Folgendes:

      • Ich kann die Verdrahtung mit einem digitalen Multifunktionsmessgerät prüfen.
      • Ich kann das Motorschutzrelais einstellen.
      • Ich kann das Zeitrelais gemäß der Kundenvorgaben einstellen.
      • Ich kann die Funktion der Schrankensteuerung prüfen.
      • Ich kann das Drehfeld des Schrankenmotors messtechnisch ermitteln.
      • Ich kann die Funktion der Schrankensteuerung mithilfe des Versuchsaufbaus erklären.
      • Ich kann Arbeitstechniken in komplexen Situationen anwenden.
      • Ich kann zur Lösung von Problemen Strategien anwenden.
      • Ich kann in komplexen Situationen durchhalten.
      • Ich kann mit einem Lernpartner konzentriert zusammenarbeiten.
      • Ich kann im Rahmen eines Zweiergesprächs die Funktion erklären.
    • _________________________________________________________________________________

    • Übung zum Einstieg

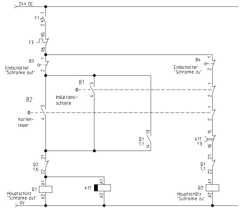
      In diesem Lernschritt werden Sie den Hauptstromkreis und den Steuerstromkreis der Schrankensteuerung prüfen und in Betrieb nehmen. 

      Bearbeiten Sie folgenden Buchstabensalat. Finden Sie dabei die gesuchten Wörter:

    • Erstellen Sie einen Screenshot des fertigen Buchstabensalats und legen Sie diesen in Ihrem Studierendenordner ab.

      Dateiname: "LS3.2_Buchstabensalat"

    • _________________________________________________________________________________

    •  

    • Aufgabe 1

      Sie möchten Ihre Schrankensteuerung in Betrieb nehmen. Hierzu messen Sie zuerst die Stromkreise mit dem Multifunktionsmessgerät im spannungsfreien Zustand durch.

      Gehen Sie in folgenden Schritten vor:

      1. Testen Sie die korrekte Verdrahtung des Hauptstromkreises mit dem digitalen Multifunktionsmessgerät.

      2. Testen Sie die korrekte Verdrahtung des Steuerstromkreises mit dem digitalen Multifunktionsmessgerät.

      Hilfe zum Messen mit dem digitalen Multifunktionsmessgerät erhalten Sie hier:

    • _________________________________________________________________________________

    • Aufgabe 2

      Erklären Sie Ihrer Lernpartnerin / Ihrem Lernpartner, wie Sie die korrekte Verdrahtung mit dem digitalen Multifunktionsmessgerät gemessen haben.

      Themenideen für das Zweiergespräch:

      - Beim Messen der korrekten Verdrahtung bin ich folgendermaßen vorgegangen ...

      - Das digitale Multifunktionsmessgerät habe ich folgendermaßen bedient ...

      - ...

      Sollten Sie beim Prüfen der Verdrahtung Probleme gehabt haben, bitten Sie Ihre Lernpartnerin bzw. Ihren Lernpartner um Hilfe.

      Wiederholen Sie danach Aufgabe 2 mit einer / einem neuen Lernpartnerin / Lernpartner.

    • _________________________________________________________________________________

    • Aufgabe 3

      Bevor Sie die Spannung zuschalten können, möchten Sie das Motorschutzrelais einstellen.

      Bearbeiten Sie zuerst die folgende Übung:

    •  

    • Sie haben die Übung erfolgreich beendet?

      JA: Stellen Sie den Bemessungsstrom des Schrankenmotors am Motorschutzrelais ein.

      Nein: Suchen Sie sich eine Lernpartnerin / einen Lernpartner und bitten Sie sie / ihn um Hilfe.

    •  

    • Sie haben die Übung erfolgreich beendet?

      JA: Stellen Sie den Bemessungsstrom des Schrankenmotors am Motorschutzrelais ein.

      Nein: Suchen Sie sich eine Lernpartnerin / einen Lernpartner und bitten Sie sie / ihn um Hilfe.

    • _________________________________________________________________________________

    • Aufgabe 4

      Stellen Sie nun das Zeitrelais ein.

      Der Kunde wünscht sich eine Verzögerung von 9 Sekunden.

      Bearbeiten Sie hierzu die folgende Übung:

    •  

    • Sie haben die Übung erfolgreich beendet?

      JA: Stellen Sie das Zeitrelais so ein, dass eine Verzögerung von 9 Sekunden gegeben ist..

      Nein: Suchen Sie sich eine Lernpartnerin / einen Lernpartner und bitten Sie sie / ihn um Hilfe.

    •  

    • Sie haben die Übung erfolgreich beendet?

      JA: Stellen Sie das Zeitrelais so ein, dass eine Verzögerung von 9 Sekunden gegeben ist..

      Nein: Suchen Sie sich eine Lernpartnerin / einen Lernpartner und bitten Sie sie / ihn um Hilfe.

    • _________________________________________________________________________________

    • Aufgabe 5

      Sie haben alle vorbereitenden Arbeiten erledigt und können die Spannung bei Ihrer Schrankensteuerung zuschalten.

      Melden Sie sich bei Ihrer Lehrerin / Ihrem Lehrer und lassen Sie sich die Spannung zuschalten.

    • _________________________________________________________________________________

    • Aufgabe 6

       

      Testen Sie die Funktion Ihrer Schrankensteuerung.

      Schalten Sie die Leitungsschutzschalter F1 und F2 ein.

      Die Schranke befindet sich in Grundstellung.

      In der Grundstellung ist die Schranke geschlossen. Das bedeutet, dass der Endschalter B4, Schranke geschlossen, betätigt ist.

      Der Endschalter B3, der Kartenleser B2 und die Induktionsschleife B1 ist nicht betätigt.

    • Bearbeiten Sie die folgenden beiden Schrittketten zur Inbetriebnahme:

    • Bearbeiten Sie mit Ihrer Lernpartnerin / Ihrem Lernpartner die folgenden beiden Schrittketten zur Inbetriebnahme.

      Teilen Sie sich dabei auf. Eine / Einer liest vor und füllt die Schrittkette aus, der / die andere bedient die Steuerung.

    • _________________________________________________________________________________

    •  

    • Aufgabe 7

      Messen Sie das Drehfeld des Schrankenmotors in der Aufwärtsbewegung und in der Abwärtsbewegung.

      Dokumentieren Sie Ihre Messergebnisse in folgender Übung:

    • Hilfe zur Drehfeldmessung bekommen Sie hier:

    • _________________________________________________________________________________

    • Aufgabe 8

      Erklären Sie mithilfe Ihres Versuchsaufbaus Ihrer Lernpartnerin / Ihrem Lernpartner die Funktion der Schrankensteuerung.

    • _________________________________________________________________________________